大把推首页|会员中心|服务热线:4000724365企业采购上大把推|保存桌面|手机浏览
23

唐山君科自动化极速体育极速体育_nba在线直播极速体育_jrs电脑直播有限公司

唐山君科自动化极速体育极速体育_nba在线直播极速体育_jrs电脑直播有限公司
新闻中心
  • 暂无新闻
产品分类
  • 暂无分类
联系方式
  • 联系人:吴经理
  • 电话:13930578268
  • 手机:13930578268
  • 传真:0315-3121138
首页 > 供应产品 > 接包输送机
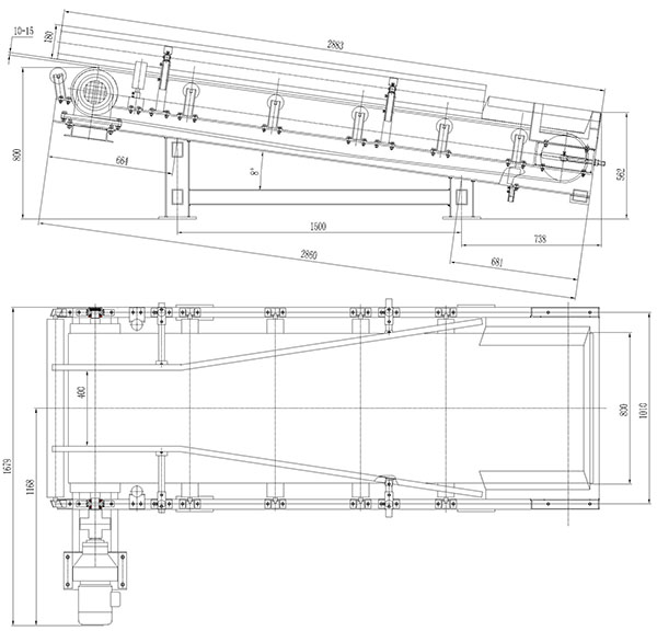
接包输送机
点击图片查看原图
产品: 浏览次数:100接包输送机 
单价: 面议
最小起订量:
供货总量:
发货期限: 自买家付款之日起 3 天内发货
有效期至: 长期有效
最后更新: 2018-07-10 14:39
  询价
详细信息


产品说明

 

一、用途:

将灌装掉袋后的水泥袋接收并输送给清袋极速体育极速体育_nba在线直播极速体育_jrs电脑直播。

 

二、特点:

输送带采用花纹胶带,输送带的高度和角度可调,输送带前端设有辊道与前方正包机相接,可漏掉水泥袋下的粉尘。

 

三、技术参数:

询价单